H πρόταση παρουσιάζει ένα οικιστικό συγκρότημα, με έμφαση τόσο στο σχεδιασμό όσο και στο κόστος κατασκευής και έχοντας ως στόχο τη δημιουργία καλά μελετημένων χώρων διαβίωσης που απευθύνονται σε νέες οικογένειες. Ο σχεδιασμός ανταποκρίνεται στις δυναμικές της σύγχρονης αστικής ζωής, δίνοντας προτεραιότητα στην προσαρμοστικότητα, τη χωρική σαφήνεια και την ένταξη στο τοπικό πλαίσιο.
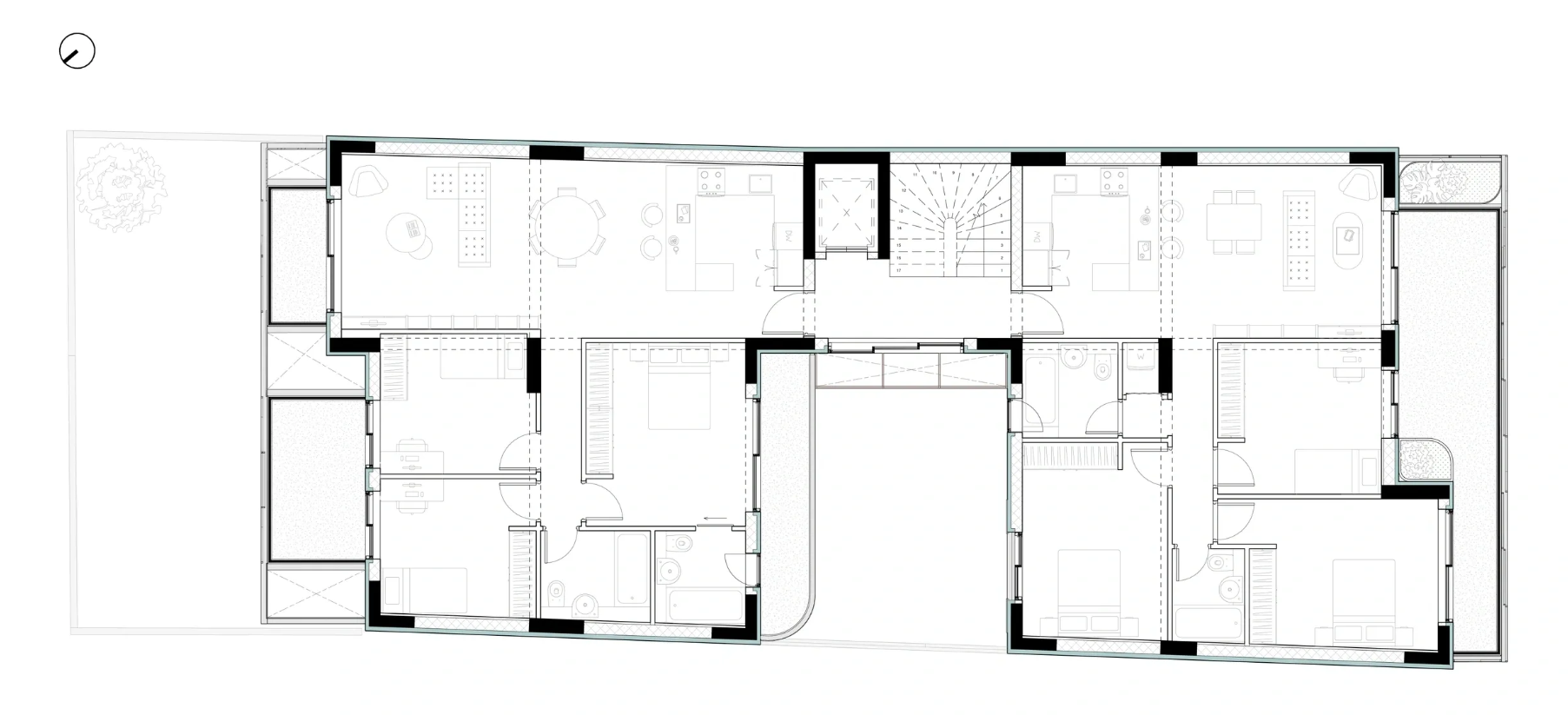
Το κτίριο οργανώνεται σε δύο διακριτούς, ορθολογικούς όγκους που στεγάζουν τους κύριους χώρους διαβίωσης, οι οποίοι συνδέονται μέσω ενός κεντρικού κατακόρυφου πυρήνα κυκλοφορίας. Οι κοινόχρηστοι χώροι στην ταράτσα ενθαρρύνουν την κοινωνική αλληλεπίδραση μεταξύ των κατοίκων, ενώ η ένταξη μιας μικρής εμπορικής μονάδας στο ισόγειο συμβάλλει στην ενεργοποίηση του δρόμου και υποστηρίζει τον μικτό χαρακτήρα της γειτονιάς.
Οι όψεις ορίζονται από ένα σύστημα εξωτερικών χώρων διαβίωσης, περιβαλλόμενων από κινητά σκίαστρα που ανταποκρίνονται στις ανάγκες ιδιωτικότητας και στις περιβαλλοντικές συνθήκες — προσφέροντας προστασία από τον ήλιο και τον άνεμο. Αυτοί οι χώροι λειτουργούν ως ένα «τρίτο πεδίο» μεταξύ του ιδιωτικού εσωτερικού και του δημόσιου χώρου, διαμεσολαβώντας τα όρια και ενισχύοντας τη χωρική ευελιξία.
Αυτό το «τρίτο πεδίο», μέσα από τη γεωμετρία και την υλικότητά του, αντανακλά τους κυκλικούς ρυθμούς της καθημερινής αστικής ζωής. Λειτουργεί ως ένας μηχανισμός ανταπόκρισης — προσαρμοζόμενος στις μεταβαλλόμενες συνθήκες φωτισμού, στις εποχιακές αλλαγές και στις ποικίλες δραστηριότητες που εκτυλίσσονται στη διάρκεια της ημέρας — αποτυπώνοντας το πέρασμα του χρόνου και τα διακριτικά ίχνη της ανθρώπινης παρουσίας.
Η αισθητική του έργου είναι ριζωμένη στην καθημερινή απλότητα, όπου το συνηθισμένο μετατρέπεται σε ξεχωριστό και το κοινότοπο γίνεται καθοριστικό στοιχείο της ταυτότητας του κτιρίου.
Τελικά, η πρόταση επιδιώκει να καλλιεργήσει έναν διάλογο με το άμεσο αστικό της περιβάλλον, ανταποκρινόμενη στις ανάγκες των κατοίκων και της ευρύτερης κοινότητας μέσα από έναν σχεδιασμό που ισορροπεί ανάμεσα στη λειτουργικότητα και στον έντονο αρχιτεκτονικό χαρακτήρα.









